Vendesi quadrilocale con box auto in via Cigna

Via Francesco Cigna, 63, Torino, TO, Italia

Caratteristiche

  • box auto
  • cantina

Dettagli

Vendesi tramite asta giudiziaria, appartamento con box auto, in  Via Cigna n. 63, zona Aurora a Torino.

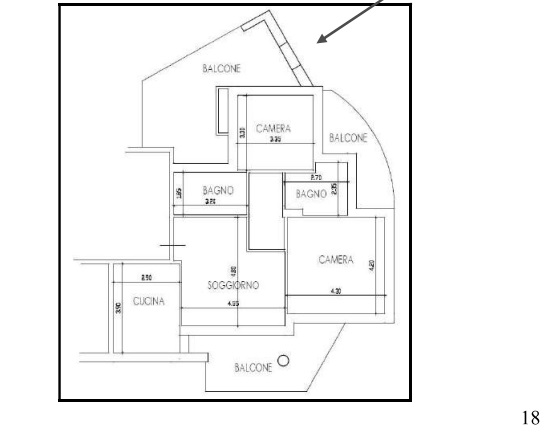
Al piano quarto (5° f.t.) con accesso da Via Cigna n. 63, nella palazzina A, piena proprietà di appartamento di circa mq, 90 + 44mq balconi. Composto da soggiorno, cucina, due camere, disimpegno e doppi servizi, oltre a cantina al piano interrato e, con accesso da Via Cecchi n. 38/c, locale ad uso autorimessa privata al piano interrato.

Foto e dati tecnici, relativi la pubblicazione d’asta ufficiale, sono consultabili presso il nostro studio e saranno trasmessi in fase di consulenza gratuita.

I vantaggi delle aste sono:
– Numerose soluzioni disponibili
– Consulenza personale
– Sempre e solo il tuo interesse!

AVRAI ASSISTENZA TOTALE PER ACQUISTO IN ASTA
– Apertura pratica
– Ricerca immobile scontata rispetto al libero mercato
– Valutazione globale dell’investimento
– Banca dati aggiornata
– Prenotazione e visita dell’immobile
– Valutazione valore di mercato
– Controlli sull’immobile ed eventuali abusi edilizi
– Preparazione documentazione asta e presentazione

– Partecipazione e assistenza in asta
– Gestione completa del post-asta
– Decreto di trasferimento e cancellazioni ipotecarie
– Ritiro e consegna delle chiavi

Le caratteristiche saranno fornite presso il nostro ufficio

Per maggiori informazioni puoi contattare il nostro ufficio
Cell. 370/3434122 Corso Trapani 1/G – Torino

Seguici su Facebook

seguici su Instagram

Planimetrie

Via Cigna n. 63, Torino TO

  • ID: 13436
  • Published: 29 Novembre 2024
  • Last Update: 29 Novembre 2024
  • Views: 1128