Mirafiori, vendesi quadrilocale con box auto

Strada del Drosso, 184, Torino, TO, Italia

Caratteristiche

  • ascensore
  • box auto
  • cantina

Dettagli

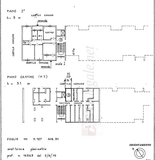
Vendesi tramite asta giudiziaria, quadrilocale con box auto, in zona Mirafiori, Strada del Drosso, 184. Posto al piano secondo (terzo fuori terra): appartamento composto da ingresso/disimpegno, cucina, tinello, tre camere, due bagni, un ripostiglio e due balconi verandati; – b) al piano terreno: un locale ad uso cantina; – c) nel basso fabbricato al piano terreno: box auto composto da unico locale.

Foto e dati tecnici, relativi la pubblicazione d’asta ufficiale, sono consultabili presso il nostro studio e saranno trasmessi in fase di consulenza gratuita.

I vantaggi delle aste sono:
– Numerose soluzioni disponibili
– Consulenza personale
– Sempre e solo il tuo interesse!

AVRAI ASSISTENZA TOTALE PER ACQUISTO IN ASTA
– Apertura pratica
– Ricerca immobile scontata rispetto al libero mercato
– Valutazione globale dell’investimento
– Banca dati aggiornata
– Prenotazione e visita dell’immobile
– Valutazione valore di mercato
– Controlli sull’immobile ed eventuali abusi edilizi
– Preparazione documentazione asta e presentazione

– Partecipazione e assistenza in asta
– Gestione completa del post-asta
– Decreto di trasferimento e cancellazioni ipotecarie
– Ritiro e consegna delle chiavi

Le caratteristiche saranno fornite presso il nostro ufficio

Per maggiori informazioni puoi contattare il nostro ufficio
Cell. 370/3434122 Corso Trapani 1/G – Torino

Seguici su Facebook

seguici su Instagram

Planimetrie

Str. del Drosso 184 10135 Torino TO Italia, 10135 Torino TO

  • ID: 13732
  • Published: 11 Giugno 2025
  • Last Update: 11 Giugno 2025
  • Views: 931