Strada del Portone, vendesi quadrilocale con box auto

Str. del Portone, 35, 10137 Torino, TO, Italia

Caratteristiche

  • box auto
  • cantina
  • terrazza

Dettagli

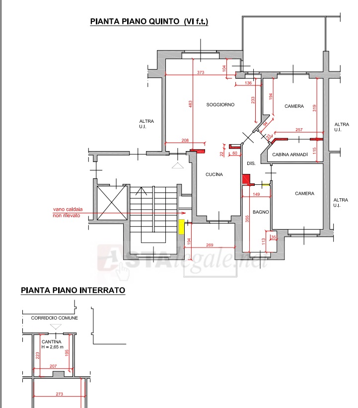
Vendesi tramite asta giudiziaria,  piena proprietà quadrilocale con box auto,  strada del Portone 35 int. 6,  nel Comune di Torino (TO). Appartamento al piano quinto, composto di soggiorno living con angolo cottura, due camere e servizio  con cantina pertinenziale e autorimessa al piano interrato.

Foto e dati tecnici, relativi la pubblicazione d’asta ufficiale, sono consultabili presso il nostro studio e saranno trasmessi in fase di consulenza gratuita.

I vantaggi delle aste sono:
– Numerose soluzioni disponibili
– Consulenza personale
– Sempre e solo il tuo interesse!

AVRAI ASSISTENZA TOTALE PER ACQUISTO IN ASTA
– Apertura pratica
– Ricerca immobile scontata rispetto al libero mercato
– Valutazione globale dell’investimento
– Banca dati aggiornata
– Prenotazione e visita dell’immobile
– Valutazione valore di mercato
– Controlli sull’immobile ed eventuali abusi edilizi
– Preparazione documentazione asta e presentazione

– Partecipazione e assistenza in asta
– Gestione completa del post-asta
– Decreto di trasferimento e cancellazioni ipotecarie
– Ritiro e consegna delle chiavi

Le caratteristiche saranno fornite presso il nostro ufficio

Per maggiori informazioni puoi contattare il nostro ufficio
Cell. 370/3434122 Corso Trapani 1/G – Torino

Seguici su Facebook

seguici su Instagram

Planimetrie

Str. del Portone 35 10137 Torino TO Italia, 10100 Torino TO

  • ID: 13456
  • Published: 2 Dicembre 2024
  • Last Update: 2 Dicembre 2024
  • Views: 1091